büro

RATAPLAN in Bratislava!

Unsere diesjährige Büro-Exkursion ging nach Bratislava: Nur 1 Stunde bzw. rund 80km von Wien entfernt, tauchten wir in die architektonisch sowie historisch wertvolle Hauptstadt der Slowakei ein. Dank unseres Guides, einem Architekturstudenten der technischen Fakultät in Bratislava, bekamen wir nicht nur eindrucksvolle „Gebäude-Schmankerln“ serviert, sondern auch traditionelle Brimsen und Halusky!

Projekt

Der Herbst, der bringt Trauben...

..auch an der Fassade der Aussenstelle West von Wien Kanal in der Boschstraße, Wien 19: hier rankt Vitis Vinifera, die edle Weinrebe von den hängenden Trögen entlang den Rankhilfen während von den bodengebundenen Trögen Blauregen (Wisteria Floribunda), Minikiwis (Actinidia Arguta) und andere Pflanzensorten in die Höhe wachsen. Ein köstliches Upgrow des Projektes "Essbare Fassade, Boschstraße".

Presse, Projekt

Artikel über die Flying Gardens in der StadtLandZeitung NÖ

"Flying Gardens bringen grünes Leben auf heiße Plätze", so heißt es in der NÖ StadtLandZeitung, die sich in ihrem Artikel auf das Kommunale Investitionsprogramm (KIP 2025) bezieht, wonach der Bund € 500 Millionen zur Verfügung stellt, wovon ein Teil für Maßnahmen zur Klimawandelanpassung verwendet werden soll. Zumindest hieß es das noch im Mai, als der Artikel erschien. Nunmehr ist die Bedingung an geförderten nachhaltigen und klimafitten Projekten  jedoch leider kein 'must' mehr.

In: stadtlandzeitung NÖ, Rubrik "Aus der Region": "Flying Gardens bringen grünes Leben auf heiße Plätze". Mai 2025, S. 12

Presse, Projekt

GEBAUT 2024, L-Haus Nordbahnhof

... und noch ein Preis! Unser 7. "GEBAUT" - Preis: GEBAUT 2024 für das Projekt "Wohnhausanlage Nordbahnhof" verliehen durch die MA 19, Architektur und Stadtgestaltung. Im Bild DI Franz Kobermaier (MA19), Gemeinderat DI Omar Al-Rawi, DI Markus Steinmair (RATAPLAN), DI Irene Lundström MSc (MA19) und DI Erwin Zeisel (RATAPLAN). Wir freuen uns! Danke sehr!

© MA19 / Christian Fürthner

Presse, Projekt

Bravourleistung Silber!

Gestern wurde dem Projekt "VHS Ottakring" die Bravourleistung Silber des 37. Wiener Stadterneuerungspreis verliehen. Wir sind stolz und bedanken uns bei der MA 34, allen Partner*innen und den Nutzer*innen für die gute Zusammenarbeit. Herzlichen Dank!
Mehr dazu hier.

© Anna Stöcher

Ausstellung / Kunst, Projekt

ARTAPLANs "Seraph in the Flying Gardens"

Es war ein inspirierender Abend, der auf eindrucksvolle Weise das mögliche Zusammenspiel von Kunst, Architektur und stadtgrüner Innovation gezeigt hat. Vielen Dank für alle interessierten Menschen, die "Seraph in the Flying Gardens" besucht haben!

Ausstellung / Kunst, Projekt

ARTAPLAN präsentiert "Seraph in the Flying Gardens"

Es ist wieder soweit! RATAPLAN öffnet mit ARTAPLAN die Türen und zeigt zum 2. Mal "Seraph" von Nik Stützle - schwebende sowie unbewegte Stoff- und Gipskonstruktionen; ganz im Stile der Flying Gardens. Gemeinsam freuen wir uns auf viele Besucher*innen.
5. Juni, ab 18:00

Projekt

Seestadt Aspern - Seecarree Baufeld F6, 2. Platz

Gemeinsam mit Ganahl Ifsits Architekten und Rajek Barosch Landschaftsarchitektur nahmen wir am geladenen Realisierungswettbewerb in der Seestadt in Aspern teil. Mit dem Titel "Einfach. Gut." beinhaltete das Konzept einen zukunftsweisenden Vorschlag für 144 Wohnungen in einem vielfältigen Wohnungsmix.

Presse, Projekt

„Alfred Adler lehrte in Ottakring“

So lautet der von Isabella Marboe verfasste Artikel über die Sanierung der VHS Ottakring in der Presse vom Wochenende. Neben historische Einblicke in die Bildungsgeschichte Wiens um 1900 liefert der Artikel Informationen um die „Split-gelevelte Struktur der Volkshochschule“, die mit ihren 13 Ebenen eine komplexe Herausforderung nicht nur für die Herstellung der Barrierefreiheit darstellte.

In: Die Presse, SPECTRUM / Architektur & Design, AUT 26.04.2025, S. VII, Isabella Marboe
© Anna Stöcher

Projekt

Flying Gardens - eine mögliche Option für Stuttgart?

Mit der Fördereinreichung zum Klima-Innovationsfonds gemeinsam mit Green4Cities wäre ein Projekt der Flying-Gardens beinahe in Stuttgart ermöglicht worden.

Schaubild © RATAPLAN

Projekt

GLASgrün in Handwerk+Bau/Grün_Raum

GlasGrün ist gleich mehrfach im Magazin Handwerk+Bau, Ausgabe #01/2025 zu sehen: einerseits als Aufhänger für "Grüne Verschattung für Glasfassaden" und andererseits als Demonstrationsbeispiel von "Messbarkeit von Begrünungen". Und zu guter Letzt gibt es auch einen spannenden Bericht über die Pflege und Wartung von Grünfassaden mit unserem Leuchtturmprojekt von 2015: Cooler Schatten in der Grabnergasse 4, 1060 Wien.

In: HANDWERK+BAU, GRÜN_RAUM, Ausg. #01/2025, S. 5, S. 10-14 und S. 35

Foto © RATAPLAN

Projekt

Flying Gardens - Grüne Kühlung

Das Magazin des Augustinums in Deutschland hat als Leitthema der Ausgabe 01/2025 "Pflanzen". Darunter auch die "Grüne Kühlung" aus Wien, die "Flying Gardens". Hier zur online-Ausgabe.

Projekt

Flying Gardens Karmelitermarkt

Wir waren zum Frühlingsfest der Grünen am Karmelitermarkt eingeladen. Im Bild Markus Steinmair, Ulrike Lunacek, Nik Stützle.

Projekt

Wohnhausanlage Nordbahnhof

Das Magazin ARCHITEKTUR:BILD 2025 zeigt einen Querschnitt der Arbeiten des Fotografen Kurt Hoerbst. Unter anderem auch das Lang-Haus am Nordbahnhof.
Vielen Dank!

Foto © Kurt Hoerbst

Projekt

MEIDLINGER "L" Demo

In Planung steht ein Demoprojekt, das im Zuge des Forschungsprojekts "MEIDLINGER L" entwickelt wurde: Ein skalierbares und modulares Ranksystem in der Rosaliagasse, nahe des Meidlinger Markts, nimmt Bezug auf die Verbindungsstelle von öffentlichem und privatem Raum und fokussiert ein nachhaltiges Geschäftsmodell für unsere und andere Städte.
FFG Förderprgramm „Technologien und Innovationen für die Klimaneutrale Stadt 2023“.
Konsortialpartner*innen: EIGENSINN, GRÜNSTATTGRAU, BOKU IBLB., Raunicher & Partner ZT-GmbH, Schöberl & Pöll GmbH, Ingenieurbüro Robert Zöchling, tbw research, arconsol, RENOWAVE.AT, MA 22, BLUESAVE Consulting GmbH und Schreiber & Partner Rechtsanwälte.
Auszeichnung: Sonderpreis LEBENSART, ÖGUT Umweltpreis 2022.

Schaubild © EIGENSINN

Projekt

"Let's beat the heat!"

Nicht nur in Wien wären die Flying-Gardens eine Möglichkeit für eine hitzeresistente Stadtentwicklung, sondern auch für Innsbruck: "Let's beat the heat!" sammelt Ideen für einen möglichen Hitzeaktionsplan der Stadt Innsbruck. Mehr zu unserem Beitrag hier.

Schaubild © RATAPLAN

Projekt

Wiener Klima Himmel

Der Standort des ersten "Wiener Klima Himmels" steht fest: Die Planung der horizontalen Straßenbegrünung vor der Volksschule in der Corneliusgasse im 6. Wiener Gemeindebezirk ist im Zuge des Forschungsprojektes der FFG bereits weit fortgeschritten. Die Umsetzung durch die Konsortialpartner*innen tatwort, EIGENSINN, BOKU IBLB., GRÜNSTATTGRAU, MA 22 und RATAPLAN im vollen Gange.

Schaubild © EIGENSINN

Projekt

L-Haus Nordbahnhof

w24.at berichtet über das Punkt- und Langhaus im Nordbahnviertel im 2. Wiener Gemeindebezirk - im Interview mit Hannes Stangl (Sozialbau AG). 23.10.2024

Foto © Kurt Hoerbst

Projekt

Wirtschaftsagentur Wien

Relaunch von 4 Besprechungsräumen.

Projekt

Wir wünschen ein wunderbares Jahr 2025 voller Höhenflüge!

Unsere Vision für den Karmelitermarkt © RATAPLAN 2024

Projekt

flying-gardens Karmelitermarkt im Sommer

cg architect nominierte das Schaubild "flying-gardens Karmelitermarkt Vienna" zu "best of the week". Wir danken Arch. Erwin Zeisel und Spaceloops Visualisations!

Renderings © RATAPLAN

Projekt

Kinderspielraum

...im Wohnhaus "Langhaus Nordbahnhof" - für klein und groß!

Foto © RATAPLAN

Projekt

flying-gardens Karmelitermarkt

Die Idee ist, den Karmelitermarkt in der Leopoldstadt im Sommer mit einem grünen Netz zu beschatten und den Markt im Winter sternenhell zu erleuchten...

Renderings © RATAPLAN

Projekt

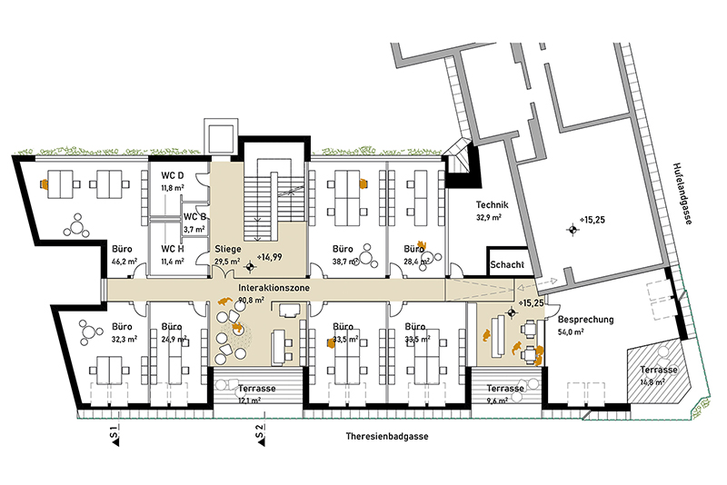
Amtshaus Theresienbadgasse, Wettbewerb

Der Fokus unseres Beitrags zum geladenen Verhandlungsverfahren "Amtshaus Theresienbadgasse, 1120 Wien" lag in der Öffnung des Mittelbereichs als multifunktionale Interaktionszone über 2 Geschosse, die mittels transluzenten Trennwänden mit ausreichend natürlichem Lichteinfall versorgt sind. Gleichzeitig konzentrierte sich das Gestaltungskonzept auf ein klimafreundliches und besseres Arbeiten: Neue beschattete Terrassenflächen und eine Fassadenbegrünung des Eckrisalits des Gründerzeithauses sollten im Zuge der geplanten Generalsanierung und des neu ausgebauten Dachgeschosses umgesetzt werden.

© RATAPLAN

Projekt

GLASgrün gewinnt den Sonderpreis des Magazins BUSINESSART

Mit der Teilnahme am ÖGUT-Umweltpreis 2024 zeigte das Konsortium "GLASgrün" innovative Lösungen zur Begrünung von Glasfassaden im Gewerbesektor und konnte mit seinen GLASgrün-Systemen den Sonderpreis des Magazins BUSINESSART erzielen. So danken wir all unseren GLASgrün-Partner*innen der BOKU-IBLB + BOKU-SEC Wien, des Instituts für Bauen und Ökologie GmbH (IBO), der GRÜNSTATTGRAU Forschungs- und Innovations GmbH, sowie lichtblauwagner architekten generalplaner ztgmbh, der MPREIS Warenvertriebs GmbH in Söll/Tirol und der TB Obkircher GmbH in 1180 Wien. Danke!

Foto © Martin Auer

Projekt

Langhaus Nordbahnhof

Das AzW führt zu neuen Projekten im Stadtentwicklungsgebiet Nordbahnhof: Am 19.11. ab 14:30 geht es u.a. auch zu dem von Rataplan geplanten Langhaus an der Nordbahnstraße gelegen.

Foto © Kurt Hoerbst

Projekt

VHS Ottakring

Eine launige Rede zur Eröffnung.

Foto © RATAPLAN

Projekt

VHS Ottakring Eröffnungsfeier

Am 10.9.2024 fand die erfolgreiche Eröffnungsfeier der VHS Ottakring statt. Mit dabei waren u.a. unser Bürgermeister Michael Ludwig und VHS-1160 Direktor Thomas Laimer.
Die Eule ist nun gelandet!

Foto © RATAPLAN

Projekt

GLASgrün in Söll/Tirol

...ein herbstliches Upgrow aus Tirol, mit Dank an Martin Auer!

Foto © Martin Auer

Projekt

Überbau präsentiert die VHS Ottakring

"Sanierung und Modernisierung" lautet der Titel unter dem Überbau die VHS Ottakring am 22. Oktober von 17:00-21:00 vorstellen möchte: "Ein Projekt, das alle Facetten des Bauens im Bestand beinhaltet. Alles sehr spannend. Schauen Sie sich das an!".
Infos unter: Überbau

Foto © Anna Stöcher

Projekt

"Blätterdach, aber ohne Bäume"

"Fliegende Gärten" als Vorschlag mehr Grün in unsere Stadt zu bringen. Im Zuge des Forschungsprojektes "Wiener Klimahimmel" gemeinsam mit der BOKU und EIGENSINN entwickelten wir die Vision, grüne Netze über Stahlgerüste zu spannen. Dabei ergaben sich unterschiedliche Stolpersteine für eine mögliche Realisierung. Bernadette Redl griff diese Information auf und publizierte einen aufklärenden Artikel zum Thema.

"Blätterdach ohne Bäume", Bernadette Redl
In: Der Standard, Immobilienstandard v. 17./18. August 2024, S. 13

Rendering © RATAPLAN

Projekt

Schick und verspielt!

Das "Langhaus" am Norbahnhof ist fertig. Mit großartigen Fotos von Kurt Hoerbst dürfen wir das fertig gestellte Projekt präsentieren.

Foto © Kurt Hoerbst

Projekt

VHS Ottakring im Endspurt...

...noch finale Besprechungen.
Im Bild die Projektleiter*innen DI Susanne Höhndorf und Nik Stützle, MSc von RATAPLAN gemeinsam mit Mag. Thomas Laimer, BA, dem Direktor der VHS in Ottakring.

Foto © Anna Stöcher

Projekt

...und noch ein upgrow:

...in Söll/Tirol. Der Supermarkt M-Preis mit seiner begrünten Glasfassade.

Foto © RATAPLAN

Projekt

Upgrow:

...Trompetenblume und Blauregen gedeihen an der Fassade der Wiener Wasser, Gudrunstraße 1100 Wien.

Foto © RATAPLAN

Projekt

Upgrow:

...Zedlitzhalle Wiener Netze bei Dämmerung.

Foto © RATAPLAN

Presse

Regelwerke zur Hitzeversorgung

...führt das Bundesinstitut für Bau-, Stadt- und Raumforschung in der Ausgabe von Juni 2024 an und präsentiert ein Bild des Amtshauses in der Grabnergasse 4 in 1060 Wien. Der "coole Schatten" bietet eine Blattfläche von ca. 484m², die etwa einem Drittel der Blattfläche einer 100-jährigen Buche entspricht (aus dem 2. Zwischenbericht des Monitorings, durchgeführt von der TU WIen, Wiener Wasser und der BOKU 2017).

In: BBSR-Analysen KOMPAKT 06/2024: "Alles geregelt? Klimafolgenanpassung in Bauplanungs- und Bauordnungsrecht." Svenja Binz, Maximilian Gerhard, Dr. Stefan Haas, S. 14

Foto © RATAPLAN

Ausstellung / Kunst

ART.APLAN Vernissage "OFF STAGE" mit Julia Münster

Ein burlesques Erlebnis in unseren Räumlichkeiten: Die Schneidermeisterin Julia Münster schaffte eine Vernissage von besonderem Ambiente. Zwischen Kostümen, Korsetten und Design fanden wir uns in einer märchenhaften Atmosphäre wieder. Vielen Dank!

Foto © RATAPLAN

Ausstellung / Kunst

ART.APLAN Vernissage "OFF STAGE"

Am 26. April 2024 ab 18:00 ist es wieder soweit: RATAPLAN öffnet seine Pforten für ART.APLAN und öffnet den Vorhang abseits der Bühne für die Werke der Kostümbildnerin und Schneidermeisterin Julia Münster. Abseits der Bühne päsentiert, geben die Unikate Einblick in das vielseitige Handwerk hinter den Kulissen.
Kreationen zwischen Kostüm und Haute-Couture laden zum Phantasieren und Entdecken ein.
Wir sind schon sehr gespannt!

Foto © Mark Völker

Projekt

Baustellenbesichtigung Nordbahnhof

Die Fertigstellung naht.
Hier auf der Terrasse des Wohnhauses "Langhaus" am Norbahnhof im 6. OG.

Projekt

Nordbahnhof bei Nacht

büro

Kling! 2024!

Wir stoßen an auf's neue Jahr! Fein war's!

Projekt

Büro- und Wohnhaus Neutorgasse

...immer wieder eine Augenweide. Der "Vorplatz" des Benehauses in der Neutorgasse, 1010 Wien aus der reflektierten Vogelperspektive!

Presse, Projekt

Kühlendes Grün

Kund:innen und Mitarbeiter:innen der MPreis Filiale in Söll befinden die Begrünung der Glaswände als außerordentlich wohltuend. Nach einer Befragung trugen zum Wohlbefinden v.a. die Punkte "Ästhetik, Natur- und Klimaschutz, die verbesserte Luftqualität, ein geschützter Lebensraum für Wildtiere, kontrollierte Temperatur und weniger Lärmbelästigung" bei.

In: handwerkundbau, Sonnenschutz-Reportage, 17.01.2024, Stefan Mayer

büro

RATAPLAN wünscht ein neues Jahr 2024!

Projekt

Nordbahnhof

Presse, Projekt

Grünphasen...

Das IBO-Magazin online berichtet über das Projekt "GLASgrün", wie durch bautechnisch integriertes, vertikales GRÜN Klima, Energiebedarf und Wohlbefinden in GLAS-Verbauten reguliert werden können und bringt als Beispiel die MPreis Filiale in Söll/Tirol. So schreibt Mag. (FH) Rudolf Bintinger: "Die Ergebnisse sind skalier- und übertragbar und bilden eine ökonomische Grundlage für künftige Adaptierungen weiterer Gebäude sowie für deren Erhaltung."

In: IBOmagazin Ökologisch Bauen. Gesund wohnen, "Grünphasen" von Mag. (FH) Rudolf Bintinger, 30.06.2023

Projekt

Upbuild Nordbahnhof

Ausstellung / Kunst

ART.APLAN Finissage "inter matter"

Und wieder war die Finissage von "inter matter" der beiden Künstler:innen Rina Treml und Stefan Maier eindrucksvoll und berauschend...
www.rinatreml.com und www.stefanmaiermite.com

Projekt, Vortrag

ÖGFA Bauvisite im Literaturhaus

Bei der 236. Bauvisite der ÖGFA (Österreichische Gesellschaft Für Architektur) im Literaturhaus Wien: Heinz Lunzer (Literaturhaus) und Gerhard Huber (RATAPLAN) führten durch den über 100 Jahre alten Eisenbetonbau - schön war's!

© Clara Kessler (ÖGFA)

Ausstellung / Kunst

Finissage "inter matter", ART.APLAN

Am Freitag, den 13. Oktober 2023 ab 18:00 findet in unseren Büroräumlichkeiten die Finissage zur Ausstellung "inter matter" von Rina Treml und Stefan Maier statt.
Die beiden Künstler:innen zeigen Arbeiten zum Thema "Natürlich und Artifiziell, Analog und Digital".
Wir freuen uns auf regen Andrang!

Mehr zu den Künstler:innen www.rinatreml.com und www.stefanmaiermite.com.

Projekt, büro

Baustellenbegehung am Nordbahnhof

Projekt

VHS Ottakring, Gleichenfeier

"(...) Bewahrt sei es vor Sturm und Brand, vor Blitz und hohem Wasserstand, vor Krieg und and'rer schwerer Not, vor Seuchen, Krankheit, jähem Tod. (...)"
Ein Auszug aus dem Gleichenspruch zur Gleichenfeier der BVH Volkshochschule Ottakring am 21. September 2023, gewidmet "allen am Bauvorhaben 'Volkshochschule Ottakring' Beteiligten".
Dipl. Ing. Wilhelm Sedlak GmbH, mit bestem Dank!

Projekt, Vortrag

Literaturhaus Wien, ÖGfA

Am 22. September 2023 ab 16:00 findet die 236. Bauvistite der ÖGfA (Österreichische Gesellschaft für Architektur) im Literaturhaus Wien statt. Es führen Heinz Lunzer (Literaturhaus) und Gerhard Huber (RATAPLAN) durch den über 100 Jahre alten Eisenbetonbau mit seinen "unterschiedlichen Zeit(ge)schichten und unterschiedlichste Nutzungen, die durch die großzügige Raumstrukturen erst ermöglicht wurden."

© Herwig Czizek

Projekt, Vortrag

OPEN HOUSE Wien, Bürohaus Andreasgasse

Im Zuge von OPEN HOUSE Wien öffnete die Sozialbau und EGW ihre Pforten: Das ehemalige Wohnhaus aus der Biedermeier-Zeit, das RATAPLAN zu einem zeitgerechten funktionalen Bürohaus umgebaut hat, erzeugte viel Staunen und machte das Interesse von Passant:innen an neuer Architektur im Altbestand deutlich.
Wir bedanken uns bei unseren Auftraggeberinnen, Open House, unseren beiden Volunteers und allen Architekturbegeisterten, die mit uns die Räumlichkeiten des Bürohauses bestaunt haben!

© RATAPLAN

Projekt

Es wächst auch im Innenbereich ..

... Kletterfeige, russischer Wein und Kastanienwein finden ihren Weg auch an den Filzwänden der Büroräumlichkeiten der Sozialbau in der Andreasgasse.

Projekt

Baustelle Nordbahnhof ...

© RATAPLAN

Projekt

Amts- und Bürogebäude Tulln, Wettbewerbsbeitrag

Nach der Studie über eine mögliche thermische Fassadensanierung und -begrünung nun unser Wettbewerbsbeitrag. Hier.

Projekt

GLASgrün in Söll, Tirol

In angenehmer und kühler Atmosphäre einen Blick in die Tageszeitung werfen, Kaffee trinken und Ruhe genießen ...

Projekt, Vortrag

OPEN HOUSE Wien, Bürohaus Andreasgasse

Das Bürohaus der Sozialbau AG in der Andreasgasse in 1070 Wien öffnet seine Pforten. Im Zuge von OPEN HOUSE Wien organisiert die IGA einen intensiven Dialog von Fachexpert:innen mit den Besucher:innen zu 9 ausgewählten Projekten. Darunter wird das Bürohaus mit der grünen Dachloggia am Samstag, 9.9.2023 zwischen 10 und 17 Uhr zu besichtigen sein. Wie arbeiten wir in der Bestandsstadt? Erlebe, wie aus einem abbruchreifen Haus ein innovatives Bürogebäude wurde.
Interessiert? Vielleicht auch als Volunteer mitzumachen? Nähere Infos unter: OPEN HOUSE Wien.

© Anna Stöcher

Projekt

Am Stahlgerüst wuchert's!

In Söll vor der Filiale des MPreis-Supermarktes ranken Blauregen, Pfeifenwinde und Humulus Lupulus (echter Hopfen) um die Wette.
Foto © Martin Auer

Projekt

Feuerwehreinsatz in der Corneliusgasse

... im Zuge eines Projektes erprobte die Feuerwehr den möglichen Einsatz, unter den Bedingungen einer zukünftig begrünten Fassade an der Volksschule in 1060 Wien. Und zum Glück! Der Einsatzleiter ist zufrieden - und wir auch! Denn nun ergibt sich die Möglichkeit, mit einer weiteren Fassadenbegrünung unserer Stadt Kühlung zu bringen!

büro

...auf den Spuren einer Sicht-Beton-Kindheit, Teil 2

... der Weg von der GTVS Dopschstraße führte weiter zur Katholischen Pfarrkirche "Heiliges Kreuz", geplant von Hannes Lintl in den Jahren 1971-1975. Ein imposanter Oktogonalbau mit gerippter Sichtbetonoberfläche und mittlerweile fast halbseitig bewachsen ...

büro

...auf den Spuren einer Sicht-Beton-Kindheit, Teil 1

Unsere heurige Büro-Exkursion ging in die Großfeldsiedlung im 21. Wiener Gemeindebezirk. Wir besichtigten die GTVS Dopschstraße, geplant von Matthias Szauer und Hans Hohenegger in den Jahren 1971-1974. Hier wurden Erinnerungen an eine "architektur-erlebte" Volksschulzeit wach!

Projekt

Upgrow Hebewerk Wiener Wasser

Dem seit 2020 fertig gestellten Projekt "Fassadensanierung und Begrünung in der Gudrunstraße" wachsen allmählich Bäume. Die Stämme wuchern und die ersten Äste sind bereits mit Trompetenblumen und Blauregen grün.

büro

... auf der Suche nach den besten Bildern!

Projekt

Langhaus Nordbahnhof

...es geht zügig voran!

Projekt

Glamping in Mörbisch am See

Vom Aussichtsturm über den Info-Check-In zu Surfboards, Segelbooten und Kinderbecken. Baumpflanzungen, Sitzflächen und eine erweiterte Terrasse laden zum Verweilen ein oder gleich zum Übernachten in einer der gut ausgestatteten "Zeltkuppeln" - eine Idee zu Glamping am Neusiedlersee.

Projekt

Langhaus Nordbahnhof

Projekt

"Zimmer mit Aussicht"

Die Baustelle am Nordbahnhof schreitet voran - mit einem wunderbaren Ausblick!

Projekt

...auf Wolke 16

© Martin Auer

Projekt

Das Stahlgerüst bekommt Knospen!

In Söll vor der Filiale des MPreis-Supermarktes beginnen die Ranken auf dem Klettergerüst zu blühen. Wir freuen uns über eine herrlich grüne Pracht im Sommer!
Foto © Martin Auer

Projekt

Amtshaus Tulln / Wettbewerb geladen

Das Amts- und Bürogebäude in Tulln soll eine Dach- und Fassadensanierung inkl. Begrünung erhalten. So wählten wir in unserem WB-Konzept ein Zusammenspiel von bodengebundenen Pflanzen, Pflanztrögen, Rankhilfen und fixen Sonnenlamellen, welche die Fassade bestmöglich verschatten und so vor sommerlicher Überhitzung schützen.
Die neue Fassadengestaltung nimmt die ursprüngliche Horizontalität wieder auf. So wird die Fuge zwischen den beiden Stahlbetonfassadenteilen im Bestand durch einen zurückgesetzten Streifen mit anders körnigem Putz in der neuen Fassade wieder aufgenommen...

Ausstellung / Kunst

ART.APLANs "inter matter" Rückschau

Es war ein wunderbarer Abend mit Kunst, anregenden Gesprächen, lieben Menschen, guten Brötchen und ausgezeichnetem Wein!
Großen Dank an die Künstler:innen Rina und Stefan.
Die Ausstellung zum Thema "Natürlich und Artifiziell, Analog und Digital" kann zu Bürozeiten besichtigt werden - bitte um Voranmeldung.
Rückschau

Ausstellung / Kunst

ART.APLAN zeigt "inter matter"

Endlich ist es wieder soweit!
RATAPLAN öffnet das Büro für Rina Treml und Stefan Maier: in einer gemeinsamen Ausstellung zeigen sie Arbeiten zum Thema "Natürlich und Artifiziell, Analog und Digital".
Wir freuen uns auf regen Andrang!

Mehr zu den Künstler:innen www.rinatreml.com und www.stefanmaiermite.com.

Projekt

Kulturzentrum Güssing / Wettbewerb geladen

Das Kulturzentrum Güssing soll eine tiefgreifende Sanierung und eine Modernisierung der haus- und elektotechnischen Anlagen erfahren. Um die Veranstaltungsflächen zu erweitern ist im Sinne des Auslobers eine Überdachung des Innenhofs geplant. Gemeinsam mit Lukas Groh stellten wir uns besonderen Herausforderungen.

Projekt

Reitschule Grafenegg, Rudolf-Buchbinder-Saal / Wettbewerb

Die ehemalige, unter Denkmalschutz stehende Reitschule von 1845 soll für musikalische Events ausgebaut und modernisiert werden. Unser Wettbewerbsbeitrag (gemeinsam mit Thomas Emmer) konziperte eine Erweiterung der räumlichen und akkustischen Wirkung aufgrund einer offenen Dachkonstruktion. Eine zwischengezogene Galerie ist von den Besucher:innen begehbar und erlaubt einen Blick aus unterschiedlichen Perspektiven.

Presse, Projekt

Aktuelles auf "Freiraum.Gestalten" Online

Das Online-Magazin "Freiraum.Gestalten" berichtet über "Vertikalbegrünung im Bestand" und zeigt 5 Beispiele Rataplans.

https://www.freiraum-gestalten.info/artikel.dll?AID=7476699&MID=178655

Projekt

...es geht kontinuierlich weiter!

Projekt

Biospärenpark Lungau / Wettbewerb geladen

Gemeinsam mit Lukas Groh erreichten wir mit unserem WB-Beitrag den 3. Platz für die Sanierung und den Umbau des Heuwirtstadls zu einem Biosphärenzentrum im schönen Lungau in Salzburg. So wird das Haus selbst als Ausstellungs-Objekt behandelt und metamorphosiert im Prozess der sensiblen Restauration...

Projekt

...mit verträumten Blick auf Ottakring!

Projekt

...mitten in Ottakring!

Projekt

Baustelle Nordbahnhof (Gemeinschaftsraum)

Projekt

Wohnhaus Süssenbrunnerstraße West / Wettbewerb geladen

Gemeinsam mit POS architekten zt gmbh erreichten wir den 3. Platz mit unserem Beitrag zum geladenen Wettbwerb, ausgelobt von mehreren Bauträger:innen.

Presse, Projekt

Amtshaus Wiener Wasser

Auch "Mein Wien" findet Platz für unser "Role Model" auf der Titelseite!

In: Mein Wien. Meine Stadt, AUT 01/2023

Projekt

Baustelle Nordbahnhof...

...das Stiegenhaus des Langhauses nun schon bis zum 4. Stock!

Presse

Grün für Bestandsbauten

Im Themenheft "Gebäudebegrünung" des alt bau neu Fachmagazins für "Sanierung und Restaurierung von Gebäuden und Denkmalen" erschien ein zusammenfassender Artikel über unsere vielfältigen Grünprojekte. Mit großem Dank an die Herausgeber:innen Irene und Manfred Murczek, www.altbauneu.at.

In: alt bau neu, Themenheft Gebäudebegrünung, AUT 12/2022, S. 8-9

büro

RATAPLAN wünscht ein inspirierendes neues 2023!

Projekt

Baustelle Nordbahnhof...

...das Langhaus wächst in die Höhe!

Projekt

...4 Musketiere?!

Projekt

Was trägt was?

Einer der vielen unbeschreiblichen Eindrücken, die aus der Büro-Besichtigung der Baustelle VHS Ottakring hervorgingen...

Projekt

Die Hauskunft ist eingezogen!

Nicht nur wir erfreuen uns nun der fertig gestellten, neuen Räumlichkeiten der Hauskunft - ein Service des Wohnfonds_Wien in der Stadiongasse 1010 Wien!

Projekt

...auch bei trüben Wetter ein anziehender Anblick!

Projekt

Es herbst'lt...

...an der Fassade des Hebewerks von Wiener Wasser in der Gudrunstraße am Fuße des Laaerberges.

Projekt

Aus Alt wird NEU!

Auf der Baustelle der Sanierung des Gebäudes der VHS Ottakring wird ordentlich gewerkelt...

Projekt, Vortrag

Bauen für Menschen

Die Ringvorlesung „Technik für Menschen – Bauen für Menschen“ von Azra Korjenic an der TU Wien bietet Vorträge von Expert:innen aus interdisziplinären Fachrichtungen an, um das Bauen auf Menschen und Umwelt einschätzen, die gesundheitlichen sowie ökologischen Auswirkungen kritisch hinterfragen und einen ganzheitlichen Blick auf Bauprozesse entwickeln zu können. Gerhard Huber berichtet in diesem Zusammenhang am 9.11.2022 über Fassadenbegrünungen im Bestand.

Im Bild das Projekt Boschstraße von Wien Kanal in 1190 Wien.

Projekt, Vortrag

IBA: "Gebäudebegrünung! Voneinander lernen, selber tun!"

GRÜNSTATTGRAU lud zu der Veranstaltung in die Räumlichkeiten der IBA Internationale Bauausstellung, um die Projekt- und Forschungsergebnisse der letzten 5 Jahre zu zeigen und zu beleuchten. So konnten sich die jeweils beteiligten Projektpartner:innen kennenlernen, austauschen und voneinander lernen. Hier zum Follow-Up Bericht von GRÜNSTATTGRAU.

Foto © grünstattgrau

Presse

Wien: Eine Stadt kühlt grün / EWS

Sonja Bettel berichtet für das Magazin der Elektrizitäts-Werke Schönau (D) wie (Fassaden-)Begrünungen nachhaltig Abhilfe gegen zunehmende Hitzeinseln in dicht bebauten Stadtvierteln schaffen. Anhand unterschiedlicher Beispiele aus Wien zeigt sie grüne Paradiese und ihre Vorteile nicht nur für Insekten und Vögel... Mit dabei: die "Coole Wand" des Amtshauses der MA 31 in 1060 und das Bürohaus der Sozialbau in 1070 Wien.

Foto © Popp-Hackner Photography

In: https://www.ews-schoenau.de/energiewende-magazin/zum-glueck/wien-eine-stadt-kuehlt-gruen/

Projekt, Vortrag

Dach und Vestibül

Die österreichische Gesellschaft für Architektur (ÖGFA) präsentiert am 7.10. über "das Addieren und Entdecken von Substanz" das Bürohaus der Sozialbau in der Andreasgasse und hebt den "vorausschauende(n) Ansatz der Integration von Grün und Architektur, (der) über reines Beranken und Kaschieren hinausgeht" hervor.

Presse

Der FALTER präsentiert die ARENA Wien

als "Wiens schönstes Konzertareal". Dem pflichten wir bei!

In: FALTER: Woche 38 / Willkommen in Wien, AUT 09/2022, Ausgabe 23.9.-29.9.2022, S. 4
Fotocredits des Titelbildes: APA/Georg Hochmuth

Presse, Projekt

Literaturhaus Wien: Umbau im Veranstaltungssaal

Über den Sommer erhielt der Veranstaltungssaal des Literaturhauses ein neues Gesicht und ist auf den neuesten Stand der Technik gebracht worden. Nun erfreuen wir uns an der - rechtzeitig zu Saisonbeginn - Eröffnungsausstellung "Ah! THOMAS BERNHARD. Den kenn ich. - Schreibt der jetzt für Sie?".

Presse

Grüne Effizienz

Gudrun Hausegger berichtet im Report von architektur.aktuell über Dachbegrünungen im Wiener Baubestand. Dabei lenkt sie die Aufmerksamkeit auf den erheblichen Mehrwert von Begrünungen im urbanen Raum und nennt als Beispiel u.a. den begrünten Dachgeschossausbau in der Andreasgasse, 1070 Wien.

In: architektur.aktuell, the art of building / Growing cities, AUT 09/2022, S. 32ff.

© Anna Stoecher

Projekt

Bürohaus Andreasgasse

Die Überbau Akademie veranstaltet am 13.09.2022 ein On-Stage Seminar im Bürohaus der Sozialbau AG in der Andreasgasse in 1070 Wien. Beleuchtet und eingehend besprochen wird die neue Firmenzentrale der Sozialbau AG und der EGW von Beginn bis zur Realisierung im März 2021. Neben der Prokuristin der Sozialbau AG, Frau Andrea Steiner führen Herr Rudolf Fritz (RATAPLAN) und Anna Detzelhofer (DnD Landschaftsplanung) durchs Programm.

Presse

Vertikalbegrünung im Bestand

Die DBZ - Deutsche Bauzeitschrift widmet sich in ihrer Ausgabe 09/2022 dem Thema der Fassade: "Die Zukunft der Fassade liegt in der Überwindung des gedankenlosen Zugriffs auf die Vielfalt des Möglichen und in einer Konzentratrion auf das substanziell Notwendige und ökologisch Verantwortbare." So liefert auch die "Coole Wand" in der Grabnergasse in 1060 Wien einen Beitrag in diesem Magazin.

In: DBZ. Deutsche Bauzeitschrift / Fassade, DE 09/2022, S. 91

Projekt

grow-up-date-im-Netz

Projekt

Saftige Weintrauben und Mini-Kiwis...

...gedeihen in der Boschstraße, 1190 prächtig!

Projekt

Frisch saniertes Gebäude der Tagesbetreuung in Hadersdorf, Teil 2

...der eingepasste Lift im Stiegenhaus.

Projekt

Frisch saniertes Gebäude der Tagesbetreuung in Hadersdorf, Teil 1

Das Gebäude, in dem die Tagesbetreuung der Volksschule und Neuen Mittelschule der Hadersdorfer Hauptstraße untergebracht ist, erhielt ein frisches Aussehen. Sowohl innen als auch außen ist das Gebäude neu bekleidet und durch einen genau eingepassten Lift im Stiegenhaus aufgerüstet...

büro

Radausflug zu Obenauf in Unternalb / Retz

Im Juni ging es mit dem Rad zur Frühstückspension der Caritas OBENauf in Unternalb. Heiß und schön war's!

Projekt

GLASgrün in Söll

...die Bepflanzung hat begonnen...
Teil 2

Projekt

VHS Ottakring...

...wie im Bergwerk!?

Projekt

"Seed and Spread!"

Gemeinsam mit SCHALLER Architekten Stadtplaner BDA, Stoa Architekten GmbH und green4cities wuchs die Idee zum Wettbewerb, das von Fritz Schupp und Martin Kremmer erbaute Kohlenbunkerensemble im Nordsternpark (DE) zu einem kulturell-, gastronomischen und grünen Produktionsstandort umzubauen, zu einem spannenden, grünen und innovativen Konzept. Laut der Gelsenkirchener Zeitung sind die Weichen für das Leuchtturmprojekt der IGA 2027 nun gestellt...

 

 

Presse

„Mehr als Zierde“

Nach und nach begreift die Öffentlichkeit Gebäudebegrünungen nicht nur als positiven Einfluss auf den Klimawandel, Hitzeinseln im urbanen Raum und auf die Luftverschmutzung, sondern diese auch kreativ in die architektonischen und städtebaulichen Gegebenheiten einzubinden. So schreibt Linda Pezzei in ihrem Artikel über Gebäudebegrünungen: „…die passende Antwort betreffend der Wahl des Systems und der Pflanzen [erfordert] stets eine individuelle Sicht […]. Eine Einheitslösung gibt es also nicht, gerade das tut dem Auge und der Umwelt gut.“ (Linda Pezzei 2022).
Als Beispiel nennt die Journalistin u.a. die Dachbegrünung des Bürohauses der Sozialbau in der Andreasgasse, 1070 und die Fassadenbegrünung des Amtshauses Wiener Wasser in 1060 Wien.

In: architektur FACHMAGAZIN „Nachhaltig bauen“, AUT 07/2022, Ausgabe 07/08 2022, S. 70-77, Linda Pezzei

büro

praterplan...

...mit praterplan kommt Schwung auf! Die Tischreservierung unserer nachgeholten Weihnachtsfeier bei einem köstlichen koreanischen Mahl...

Presse

„Hauskunft gibt Auskunft“

…im Herbst ist es soweit: am 26.9. feiert das Team der Hauskunft (Sanierungsberatung) die Eröffnung ihrer neu gestalteten Büroräumlichkeiten. Dazu gab es am 30.6. einen Pressetermin mit dem Projektleiter Nik Stützle und der Vizebürgermeisterin Kathrin Gaál (s. Foto © PID Votava).

www.hauskunft-wien.at

Projekt

GLASgrün in Söll

...die Bepflanzung hat begonnen...
Teil 1

Presse, büro

In die Zukunft schauen

...passend zu unserem derzeitigen Büroinhalt des "Nachwachsens" publiziert die IG Architektur einen Band über die Zukunft in der Architektur. "Reden wir über Baukultur!" So lehnt sich Susanne Höhndorf in ihrem Arbeitssessel zurück, hält inne und blickt weit in die (nahe) Zukunft der Architektinnen: "(...) sie erkennen die Bedürfnisse für ein gutes Zusammenleben. Sie entwickeln Ideen, um unseren Planeten zu schützen - und dadurch entwickeln sich neue Architekturen in gegebenen räumlichen Strukturen. Ich persönlich bin überzeugt von der Kraft dieser heute jungen Generation."

In: Reden wir über Baukultur, IG Architektur (HG.), AUT 07/2022, "Vision - In die Zukunft schauen", S. 151+152, DI Susanne Helene Höhndorf

© RATAPLAN

Presse

In der Schutzzone

"Rataplan Architekten schafften mit dem Umbau und der Erweiterung der Zentrale des gemeinnützigen Bauträgers einen städteplanerischen Wurf, der einerseits den Bestand erhielt und andererseits mutige Neuerungen und bedeutende Klimawandelanpassungen ermöglichte." (Gisela Gary 2022)

In: Zement+Beton "Stadtplanung", AUT 07/2022, Ausgabe 3_22, S. 22-23, Gisela Gary

Presse

Markt mit begrünter Glasfassade

Im Immobilienteil berichten die Salzburger Nachrichten vom "Pilotprojekt (...) in Söll". Das Forschungsprojekt GlasGrün zeigt anhand des Beispiels MPreis in Söll wie eine nachträgliche Begrünung an Glasfassaden aussehen kann. Die Baustelle läuft und die Fertigstellung ist jetzt für Juni geplant.

In: Salzburger Nachrichten, Immobilien, AUT 18.Juni 2022, S. 23

Projekt

MPreis in Söll wird GLASgrün

...Teil 4.

Projekt

Gebaut 2021: Andreasgasse 1070 Wien

Zum 6. Mal erhielt RATAPLAN den von der Stadt Wien (MA 19) verliehenen Preis "Gebaut". Die Sanierung mit Umbau inkl. begrüntem Dachausbau des Bürohauses Andreasgasse 9 in 1070 Wien wurden im März 2021 fertig gestellt. Wir freuen uns!

© Anna Stoecher

Presse

Bürohausumbau von Rataplan in Wien

Detail beschreibt das Bürohaus der Sozialbau AG aus innenarchitektonischer Sicht und hebt gut die Besonderheiten der Gebäudehülle hervor: "Um den Höhenversprung zu kaschieren und den Gebäudekomplex maßstäblich in sein Umfeld einzupassen, setzten die Architekten dem Altbau ein über mehrere Geschosse reichendes Schrägdach auf und verkleideten dieses außen mit ziegelroten Sonnenschutzlamellen. (...) Im Inneren des Hauses erstrecken sich die Büroabteilungen jeweils über zwei Etagen; Deckenöffnungen, Galerien und Treppenläufe verbinden sie." (Schoof, 2022)

In: Detail online / Sanierung, Büro, Gründach, Dachaufstockung, Lamellen, DE 7.06.2022, Jakob Schoof

Projekt

MPreis in Söll wird GLASgrün

...Teil 3.

Projekt

MPreis in Söll wird GLASgrün

...Teil 2.

Projekt

MPreis in Söll wird GLASgrün

...Baustelle ist gestartet - Teil 1.

Presse, Projekt

Sanierungsoffensive für klimaneutrale Gebäude

Susanne Formanek (grünstattgrau) beschreibt in diesem Artikel Möglichkeiten der Bauwerksbegrünungen, die im Zuge des österreichischen Ziels der Klimaneutralität bis 2040 unterschiedlich gefördert werden können. Eines der angeführten Beispiele bildet das Projekt der Wiener Wasser in der Grabnergasse 4, 1060 Wien: "Die fassadengebundene Begrünung mit Trögen und Kletterpflanzen bedeckt rund 990m² Fassade der Zentrale der Abteilung MA31 Wiener Wasser. Die Bewässerung erfolgt über ein automatisches System mit Sensoren."

In: HANDWERK + BAU, Grün_Raum, Ausgabe 02/2022, AUT 05/2022, S. 12-15, Susanne Formanek

© RATAPLAN

Presse, Projekt

Millionen für die Bildung

So heißt es in einem Artikel der Zeitschrift "Mein Wien": 27 Volkshochschulen sollen bis 2030 saniert und modernisiert werden. Den Start bereitet das Gebäude Baujahr 1905: "Das Gebäude (...) soll bis 2024 barrierefrei umgebaut werden, erhält einen Aufzug und moderne Haustechnik. Der Dachausbau bietet Platz für einen Veranstaltungssaal mit Terrasse - die Wolke 16." (s. Bild)

In: MEIN WIEN, Ausgabe 08/2022, Stadtpolitik, AUT 05/2022, S. 10

büro

Servus nach Köln!

Aufregend war’s! Dankeschön an unsere Team-Kolleginnen und Kollegen in Köln!

 

SCHALLER Architekten Stadtplaner BDA und Stoa Architekten GmbH

büro

Jemen-Abend bei RATAPLAN

Wir (zeit)reisen in das Land Jemen ins Jahr 1983! Bei arabischen Fleischbällchen und österreichischen Bier genießen wir endlich wieder einen gemeinsamen Fotoabend.

Lehrtätigkeit

Fassadenbegrünung im Bestand, Vorlesung

Im Zuge eines Blockseminars von Univ. Prof. Dipl.-Ing. Dr. techn. Azra Korjenic an der TU Wien. Inst. f. Werkstofftechnologie. Bauphysik und Bauökologie hielt RATAPLAN eine Vorlesungseinheit zu Fassadenbegrünung im Bestand.

Projekt

Die VHS Ottakring im Umbruch!

Projekt

GLASgrün / FFG "Stadt der Zukunft"

Wir verwirklichen unser (zweites) Begrünungsprojekt an Glasfassaden. Im Zuge des Forschungsprojektes von GLASgrün, dessen Mitwirkende wir neben GsG-grünstattgrau-GmbH, IBO GmbH, liwa architekten zt gmbh und MPREIS Warenvertriebs GmbH sind, werden vertikale Begrünungsvarianten für bestehende und neugestaltete Gebäude mit Glasfassaden entwickelt. Es fehlt an Standardanwendungen für die moderne Architektur aus Glas. So finden wir die GRÜNE Lösung in unserem ersten gemeinsamen Forschungsprojekt an der MPreis Filiale in Söll/Tirol.

Presse

Die grüne Fassade der Moderne

"Städte stehen vor der Herausforderung, bis 2050 klimaneutral zu werden," heißt es in einem Artikel von Dolores Stuttner im architektur Fachmagazin. Als aktuelles Thema greift sie Fassaden- und Dachbegrünungen auf und nimmt Bezug auf das "Positivbeispiel für die Umsetzung einer grünen Fassade am Bestand". Nämlich das Projekt Cooler Schatten am Amtsgebäude der MA 34 in der Grabnergasse 4, 1060 Wien. 2016 fertig gestellt, bekleidet nun eine Tragkonstruktion mit Pflanzentrögen die Fassadenfläche von insgesamt 1.000 m².

In: architektur Fachmagazin, AUT 03-04/2022, S. 6-11, Dolores Stuttner

© Anna Stöcher

Presse

Neue Arbeitswelten in alten Mauern

In seinem Bericht in der Presse beschreibt Erich Ebenkofler den Trend hin zu revitalisierte Bürogebäude im Gegenzug zu Neubauten, die in den vergangenen Jahren den Markt dominieren (vgl. Ebenkofler, 2022). Als Beispiel stellt er das Projekt der Filialerweiterung der Sozialbau AG vor: "Wie sich solche Bestände in eine moderne Arbeitswelt umgestalten lassen, hat im Vorjahr das Architekturbüro Rataplan in der Andreasgasse im 7. Bezirk eindrucksvoll gezeigt. Dafür haben die auf Revitalisierungen spezialisierten Planer einen abbruchreifen Wohnhausbestand entkernt und durch zwei Neubautrakte ergänzt, die sich in einen Eingangsbereich mit angrenzendem Innenhof und zwei darüberliegende Geschoße unterteilen,..." (Ebenkofler, 2022)

In: Die Presse, FOKUS: GEWERBEIMMOS, AUT 18. Februar 2022, S. F4

büro

GRÜNE WENDE JETZT!

Wir wollen eine klimaresiliente Stadt gestalten! Der Raum in der Stadt ist wertvoll, aber begrenzt. Daher leisten Fassaden- und Dachbegrünungen einen wertvollen Beitrag, qualitätvollen Lebensraum zu schaffen.
Wir wollen Zukunft gestalten! Einen sinnvollen Beitrag leisten, die Welt zu einer besseren zu machen.

© Anna Stoecher

Presse

Eine gute Art, der Stadt zu begegnen

Einen weitsichtigen Überblick schafft Isabella Marboe mit ihrem Artikel über das Bürogebäude der Sozialbau AG in der Andreasgasse, 1070 Wien. So beschreibt sie die oberste Etage als "ein zurückversetztes Staffelgeschoß. Ihre Glasfront wird von einer leicht schräg gestellten, begrünten Lamellenfassade beschattet. Eine der schönsten Formen des Sonnenschutzes,..." (Marboe, 2022)

In: Die Presse, SPECTRUM / Architektur & Design, AUT 12. Februar 2022, S. VII

Presse

Revitalisierter Altbau in Neubau

Der gelungene Titel ist aus einem von Martin Putschögl publizierten Artikel im Immobilienstandard entnommen. So schreibt er weiters über das Projekt: "Das vorgründerzeitliche Gebäude in der Andreasgasse in Wien-Neubau war 'eigentlich eine Ruine', ein Abbruch wurde aber nicht genehmigt. Also machten die Rataplan Architekten ein modernes Bürogebäude für Unternehmen der Sozialbau-Gruppe daraus. Es wurde teilweise entkernt, erweitert und so behutsam aufgestockt, dass das neue Dachgeschoß von der Straße her gar nicht sichtbar ist." (Putschögl, 2022)

In: Der Standard / Immobilien, AUT 12./13. Februar 2022, S. 13
und online vom 11.02.2022

© Anna Stoecher

Presse

Arbeitswelt mit viel Grün in historischen Mauern

Im Magazin GebäudeGrün wird die Innenraumgestaltung des Projektes Bürohaus in der Andreasgasse 9, 1070 Wien besonders hervorgehoben: "Diese Synergie von Alt und Neu ist auch in den Innenräumen erlebbar und fördert eine Zusammenarbeit der einzelnen Abteilungen über Stockwerke hinweg. Galerien und übergreifende Bepflanzungen verbinden Mensch und Arbeitsauftrag." (RATAPLAN, 2021)

In: GebäudeGrün, Dach.Fassade.Raum.Grün, DE 01/2022, S. 62

© Anna Stoecher

Presse

Andreasgasse 9, Wien VII.

"Neue Arbeitswelt im historischem Kern"
Das Magazin "alt bau neu" startet das neue Jahr mit einem wunderbaren Artikel zur Filialerweiterung der Sozialbau AG in der Andreasgasse, 1090 Wien.  Architektonische und tragwerksplanerische (Harrer & Harrer ZT GmbH) Inhalte stehen im Vordergrund.

In: alt bau neu, AUT 01/2022, S. 20-23

© Anna Stoecher

Presse

Denkmalgeschützte Fassade, modernster Innenausbau

Mit der ersten gemeinnützigen Wohnbaugesellschaft mbH (EGW) als Nutzerin der Filialerweiterung der Sozialbau AG haben wir in der Planung der Innenraumgestaltung eine kompetente und flexible Partnerin gefunden. Dies zeigt auch ein von rhtb: projekt gmbH (Ausführung Innenausbau) inszenierter Artikel zum modernen Innenausbau des revitalisierten Bürogebäudes in der Andreasgasse 9, 1070 Wien: "Der optische Wechsel zwischen bewusst freigelegtem, altem Ziegelmauerwerk und den originalen Holzböden sowie den neuen Stahlbeton-, Gipskarton- und Glastrennwänden schafft ein abwechslungsreiches Arbeitsumfeld, das dem Selbstverständnis der ältesten gemeinnützigen Wohnbaugesellschaft Österreichs entspricht. [...] Hinter der denkmalgeschützten Fassade (...) befindet sich heute ein topmodernes Arbeitsumfeld, das seine traditionsreichen Wurzeln trotzdem nicht verleugnet." (rhtb: projekt gmbH, 2022)

In: architektur.planen.bauen.wirtschaft. Wien, Nö, Bglnd. 2021, AUT 01/2022, S. 60-62

Projekt

Wohnhaus Nordbahnhof

Seit Ende Dezember wird auf unserer Baustelle am Nordbahnhofgelände fleißig gegraben. Es wird tiefer und tiefer! Ein Fünftel des Aushubes ist schon geschafft...

be focused

...happy new year 2022!

Wir sind zertifizierte GREENPASS Partner in Ausbildung!

Als Urban Climate Architect (UCA) können wir nun state-of-the-art klimaresiliente Planungen mit GREENPASS durchführen und anbieten. GREENPASS bietet für jede Planungsphase eine passende Lösung.

© RATAPLAN

Projekt

Rastplatz der Zukunft, Wettbewerb

RATAPLANs Beitrag zum Wettbewerb "Rastlatz der Zukunft, am Beispiel Rastplatz Roggendorf (A1 West Autobahn)".

© RATAPLAN

Neue Räume für die Hauskunft, Wettbewerb 1. Platz

Wir freuen uns für die Sanierungsberatung für Häuser mit Zukunft (Hauskunft) neue Räumlichkeiten zu schaffen: "Raumschichten" zonieren die offene Raumstruktur; gemütliche und geschützte Besprechungsbereiche entstehen...

© RATAPLAN

Architektur im Homeoffice

Presse

Wir kühlen unsere Stadt.

Auf der diesjährigen Kommunalmesse in Tulln haben wir uns umgesehen und die Fühler v.a. nach Betrieben mit hohen Anspruch an eine klimaresiliente Stadt ausgestreckt. Wir kühlen unsere Stadt!

© Bruno Klomfar

büro

vienna passathon 2021

Race for Future noch bis 16. Oktober 2021. Geradelt wird zu insgesamt 540 Klimaschutzprojekten. Eines davon befindet sich im 3. Wiener Gemeindebezirk. Das Bürohaus der AKM in der Baumannstraße 10. RATAPLAN plante die Mustersanierung des Nachkriegsgebäudes nach höchsten Kriterien des Klima+Energie Fonds.
Mehr dazu: https://passathon.at/termine/wien

Presse

Vertikalbegrünung schützt Fassade

Das Projekt "Cooler Schatten", Amtshaus der MA 31 wird als gelungene Möglichkeit, den steigenden Hitzetagen und Trockenperioden mittels einer Fassadenbegrünung im 6. Wiener Gemeindebezirk entgegenzuwirken, angeführt. Durch vorgesetzte Stahlstützen und Rankgerüste bleibt die vertikale Struktur des 60er-Jahre-Baus und der Rhythmus des Fassadenreliefs aus Lisenen, Parapeten und Fensterebenen erhalten.

In: GebäudeGrün, Dach - Fassade - Raum - Grün, Ausgabe 03/2021, S. 64

Presse

Architekturpreis für begrüntes Hebewerk

Im Mitarbeiter:innen-Informations-Blatt "Bassena" der Wiener Wasser berichtet Katja Dämmrich über den erhaltenen Gebaut 2020 - Preis für das Hebewerk im 10. Wiener Gemeindebezirk: "Ohne aufwendige Bewässerung können über die Jahre Rankpflanzen wie die Trompetenblume einer Stahlkonstruktion entlang wachsen."

In: BASSENA, Ausgabe 57, 09/2021, S. 8, Katja Dämmrich

büro

Einblick

...wie durch eine Brille hält die Fotografin einen Moment in RATAPLANs Alltag fest. Das Foto ist im Zuge einer Team-Foto-Session entstanden. Vielen Dank an die Künstlerin Magdalena Zeisel.
Foto © Magdalena Zeisel

Presse

Wohnen mit grünem Vorhang im 2. Bezirk von Wien

..so lautet der Titel der Publikation in der Zeitschrift "Heute". Näher beschrieben werden die Projekte, die am Baufeld "Nordbahnhof III" geplant sind. U.a. auch das von RATAPLAN entwickelte Langhaus auf BF2-BPL 2c mit dem hohen Mittelteil. Eine grüne Fuge in Form eines gedrehten „L“ wächst als Pendant zum Gebäude. Durch den Einsatz unterschiedlicher Materialien erzeugen Loggien, Balkone und Pflanzentröge ein Spiel von Transparenz und Geschlossenheit. In: Wien Heute Nr. 4184, "Wohnen in Wien", AUT 20.07.2021, S. 22-23

Projekt

"gebaut 2020"

Zum 5. Mal durften wir den Architekturpreis der Stadt Wien, MA19 "gebaut" entgegennehmen. Mit dem Projekt "Fassadenbegrünung und Sanierung des Hebewerkes der MA31" in der Gudrunstraße am Fuße des Laaerberges erhielt unser Büro die Auszeichnung "gebaut 2020". Vielen Dank!

Foto © Anna Rauchenberger

Projekt

Reges Wachsen auf dem Dach

Der Blick aus dem idyllischen Hof des Möbelmuseums Hofmobiliendepot in der Andreasgasse führt zum Nachbarsdach des Bürohauses der Sozialbau AG und der EGW: begierig wachsen Pfennigkraut, Bunt-Kronwicke, Purpur-Fetthenne und viele andere Stauden aus den lamellenartigen Pflanzentrögen und werfen gleichzeitig mit den fixen Sonnenschutzlamellen Schatten vor die Glasfassade des Dachausbaus des Gebäudes.

Presse

Vier Beispiele gelungener Grün-Fassaden

"Die Fassadenbegrünung ist die architektonische Antwort auf die Folgen des Klimawandels...". Handwerk + Bau zeigt 4 von RATAPLAN unterschiedlich konzipierte Fassadenbegrünungen: Amtshaus MA31 in 1060, Hebewerk MA31 in 1100, Umspannwerk der Wiener Netze in 1010 und Außenstelle von Wien Kanal in 1190 Wien.
https://www.handwerkundbau.at/markt/rataplan-beispiele-gelungener-fassadenbegruenung-17445

Presse

Grüne Fassaden

Das Projekt "Cooler Schatten" in der Grabnergasse in 1060 Wien wird in der Publikation von Handwerk + Bau als ein Beispiel für gelungene Fassadenbegrünungen verwendet. Text: DI Susanne Formanek, Foto © grünstattgrau.
https://www.handwerkundbau.at/fassade/gruene-fassaden-17408

Projekt

GRÜN-EXKURSION

Wir starten unsere kleine Grün-Exkursion zu ausgewählten Fassadenbegrünungen von RATAPLAN im 19. Bezirk: Das Amtsgebäude von Wien Kanal erhielt letztes Jahr eine Begrünung mit essbaren Pflanzen (Mini-Kiwis und Weintrauben), die fleißig wachsen!

Projekt

Der Baum darf bleiben!

Klitzekleine Samenkörner finden ihren Weg durch Wind und Tier selbst auf kleine grüne Dachrasenflächen und werden nach 20 Jahren zu wunderschönen großen und mächtigen Bäumen! Green over Wien!

Projekt

VHS - Ottakring

Die Realisierung des Projektes "Sanierung, Umbau, Innenausbau und Zubau der VHS Ottakring" läuft in vollen Zügen. Die Entdeckung der Eule hoch oben am Eck wird nach historischem Vorbild wieder als Symbol der Weisheit die Nutzung des modernes Unterrichtsgebäudes nach außen tragen... Hierzu ist der Kurzfilm "120 Jahre VHS Ottakring" abrufbar: https://www.youtube.com/watch?v=mrm31Y2RZbA

Presse

GRÜNE FASSADEN

"Das  Interesse an Fassadenbegrünung wächst...", so startet der Teaser eines Beitrages von Susanne Formanek, Benjamin Seyer und Elisabeth Gruchmann. Auf dem Titelbild (© grünstattgrau) ist der von RATAPLAN wunderbar gestaltete vertikale Garten des Amtshauses der MA 31 in der Grabnergasse, 1060 Wien zu sehen... "Ja!" zu grünen Fassaden.
In: Handwerk + Bau "Grün_Raum", AUT 02/2021
gruenstattgrau.at

 

Presse

Eine Stadt sieht grün

Ein Beitrag von Barbara Kanzian in Architektur Journal / Wettbewerbe zu Dach- und Fassadenbegrünungen. Als Beispiel von begrünten Fassaden rücken das Amtshaus Grabnergasse, Wien 1060 und das Pumpwerk in der Gudrunstraße, Wien 1100 ins Bild (das Begrünungsprojekt Zedlitzhalle der Wiener Netze, Wien 1010 findet ebenso Erwähnung - fälschlicherweise als Bildtitel zum Pumpwerk...).
In: ARCHITEKTUR JOURNAL/WETTBEWERBE, AUT 02/2021, Barbara Kanzian

Presse

Der Irrtum um die Mobilen Schulklassen

„Containerklassen“, wie die mobilen Schulklassen meist bezeichnet werden, haben keinen so guten Ruf. Ein Beitrag vom ORF zeigt nun, dass diese Art der Klassenraum-Erweiterung nicht nur mehr Platz für Schülerinnen und Schüler schafft…

Romana Beer vom ORF im Gespräch mit Susanne Höhndorf und Katharina Wörgötter von RATAPLAN:
https://orf.at/stories/3201803/

Ausstellung / Kunst

Neue Webpage

Eine Huldigung an unsere alte Website. Lange hat sie uns gut gedient und für interessantes Feedback gesorgt.

Nun sind wir gespannt, was uns das neue Design für überraschende Momente bringen wird...

Ausstellung / Kunst

ART.APLAN nach wie vor in geschlossenen Räumen

Wunderbare Geschichten erzählen uns die Kunstwerke aus Gips von Nik Stützle.

Fein gewoben und grob gekörnt mit rauer Oberfläche und weicher Wirkung, schwer und leicht zu zerbrechen, mit linear strukturierter Fläche und rund modellierten Öffnungen… Niks Bilder und Modelle aus dem so kontrastreichen Material Gips laden zum Träumen und Verweilen ein… Wir freuen uns darauf, mit ART.APLAN erneut unsere Büroräumlichkeiten zu öffnen, um Kunst allen Kunstbegeisterten endlich wieder zugänglich machen zu können.

Ausstellung / Kunst

RATAPLAN hat ein neues Design!

Wir wollen nicht aufhören zu spielen - so entsteht ein wunderbares Logo, das aus einzelnen Segmenten besteht, welche sich flexibel zueinander und miteinander variieren lassen. Wie beim Spielen mit Bausteinen ergeben sich unendlich vielfältige Ideen und Kreationen, die von einem ins nächste übergehen...